By a practicing architect with two decades of experience delivering buildings from concept to construction
Learning Objectives
Architectural Design Phases Explained – By the end of this article, you will be able to:
- Understand the five primary architectural design phases used in professional practice
- Recognize how each phase functions within contracts, approvals, and deliverables
- Identify the typical drawings and documents produced at each phase
- Explain why skipping or rushing phases leads to cost overruns and redesign
- Read architectural projects more critically as a process, not just an outcome
Introduction: Why Design Phases Matter More Than You Think
The architectural design phases are the structured steps every building project goes through—from initial concept to construction. Understanding these phases helps homeowners, builders, and designers make better decisions, avoid costly mistakes, and move projects forward with clarity.
Every building you admire, every project that runs smoothly, and every client relationship that remains intact is held together by a clear understanding of the architectural design phases explained. These phases are not academic theory. They are the framework that governs how architects work, how consultants coordinate, how clients approve decisions, and how contractors build.
In this article, I’ll walk through the common architectural design phases used in practice today—explaining what actually happens in each phase, what documents are produced, and why each phase exists.
What Are Architectural Design Phases?
Most architectural projects follow a similar progression, regardless of size or building type. The commonly recognized phases are:

While every project has its own nuances, these phases form the backbone of professional architectural services and are commonly referenced in contracts, fee structures, and project schedules.
Design Phases Are Not Just About Design
One misconception I often see—especially among students and first‑time clients—is the belief that design phases exist only to support creativity. In reality, they are deeply embedded in the contractual framework of architectural practice.
Each phase typically represents:
- A defined scope of work
- A specific set of deliverables
- A formal client approval milestone
Advancing from one phase to the next without approval is not just risky—it is often a breach of contract. These phases protect both the architect and the client by clearly defining when decisions are made and when they are locked in.
Phase 1: Analysis — Understanding the Problem Before Drawing a Line
What the Analysis Phase Really Is
The Analysis phase is where good architecture actually begins. Long before floor plans or elevations exist, the architect must understand the constraints and opportunities of the project.
This phase typically includes:
- Program analysis (what spaces are needed and why)
- Site analysis (orientation, access, context, utilities)
- Zoning and code analysis
- Documentation of existing conditions
- Scheduling considerations
- Cost awareness and budget alignment
At this stage, the architect is not designing solutions—we are defining the problem accurately.
Phase 2: Synthesis — Turning Information into Strategy
Synthesis is often overlooked because it does not always appear as a labeled contract phase. However, in practice, it is where analysis becomes design thinking.
During synthesis, architects:
- Identify relationships between program elements
- Explore spatial strategies
- Test massing and adjacencies conceptually
- Begin shaping a coherent design direction
This is where intuition meets evidence. Without synthesis, schematic design becomes guesswork.

Phase 3: Schematic Design — Defining the Big Idea
Purpose of Schematic Design
Schematic Design is where the project’s overall concept becomes visible and understandable to others. The focus is on scope, scale, and relationships, not construction detail.
Key goals include:
- Establishing the general project scope
- Developing a conceptual design
- Defining spatial and formal relationships
- Obtaining client approval of the overall direction
This is the phase where most design alternatives are explored—and where major changes are still relatively inexpensive.
Typical Schematic Design Deliverables
- Site plan
- Floor plans for each level
- All exterior elevations
- Key building sections
- Outline specifications
- Preliminary cost estimate
- Renderings, physical models, or digital simulations
These drawings communicate intent, not instruction.

Phase 4: Design Development — Making the Design Work
What Changes in Design Development
If schematic design is about what the building is, design development is about how it works.
This phase focuses on:
- Refinement of approved schematic design
- Intensive coordination with consultants
- Aligning structure, systems, and architecture
- Reducing ambiguity and future change
In my experience, this is where projects either become strong—or begin to unravel if coordination is ignored.
Typical Design Development Documentation
- Refined floor plans
- Detailed elevations
- Building and wall sections
- Structural plans
- Mechanical and electrical layouts
Client approval at the end of this phase confirms that the project is ready for full technical documentation.
Phase 5: Construction Documentation — Turning Design into Instructions
Why This Phase Is Critical
Construction Documentation is where architecture becomes buildable. These documents are legal instruments, technical manuals, and coordination tools all at once.
The purpose is to:
- Provide complete instructions for construction
- Finalize materials and assemblies
- Coordinate all disciplines
- Support permitting, bidding, and construction
This phase demands precision, clarity, and consistency.
Typical Construction Documentation Set
- Plans, elevations, sections, and details
- Structural drawings
- Mechanical, electrical, and plumbing drawings
- Special equipment drawings (elevators, specialty systems)
- Life safety plans
- Written specifications
These documents form the contractual basis for building the project.


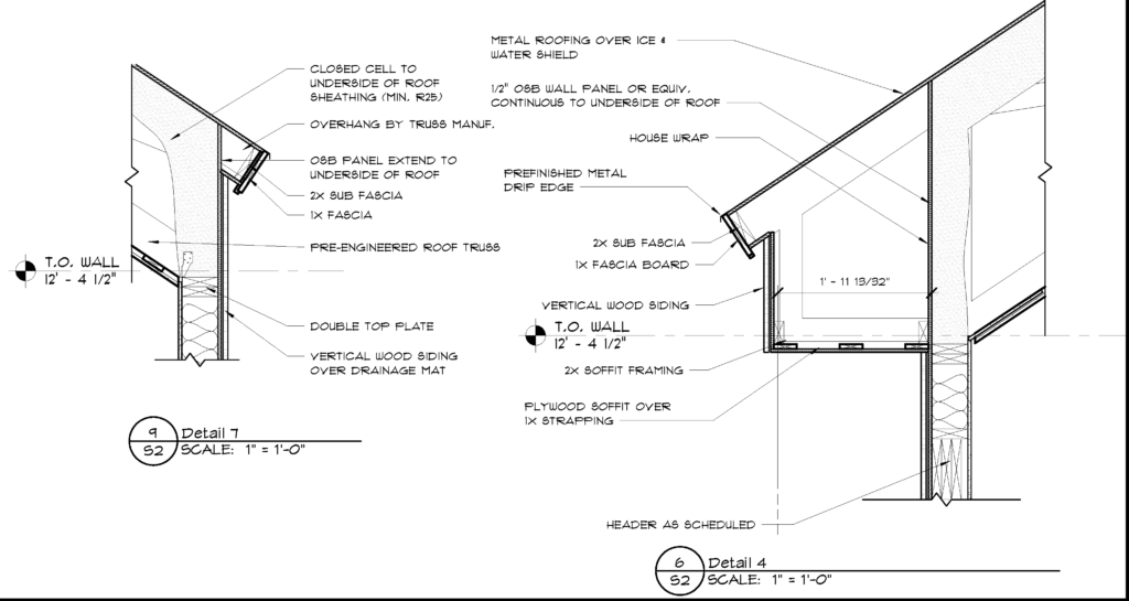
📷 Suggested image: Annotated construction detail or drawing set excerpt
How the Phases Work Together
Each design phase:
- Reduces uncertainty
- Increases specificity
- Narrows decision‑making
Skipping phases or rushing approvals does not save time—it transfers risk to construction, where changes are far more expensive.
Final Thoughts from Practice
After twenty years, the lesson is clear: architecture is not a single act of creativity, but a disciplined sequence of decisions. The design phases exist to protect that process—from both artistic chaos and technical failure.
Understanding these phases is not optional. It is the foundation of professional architectural practice.