Architecture Student Guide

Drawing Symbols & Annotations: How Architects Communicate Design Clearly

By an Architect with 20 Years of Practice

After two decades in architecture, one truth has never changed: a drawing only works if it communicates clearly. No matter how strong the concept or elegant the design, a project lives or dies by the clarity of its drawings. Drawing symbols and annotations are not decorative—they are the language of construction.

Early in my career, I learned that the most successful projects weren’t necessarily the most complex ones. They were the ones where anyone—contractor, consultant, or client—could open the set and immediately understand what they were looking at. That understanding begins with symbols, annotations, and how drawings are organized.


Drawings as a Language

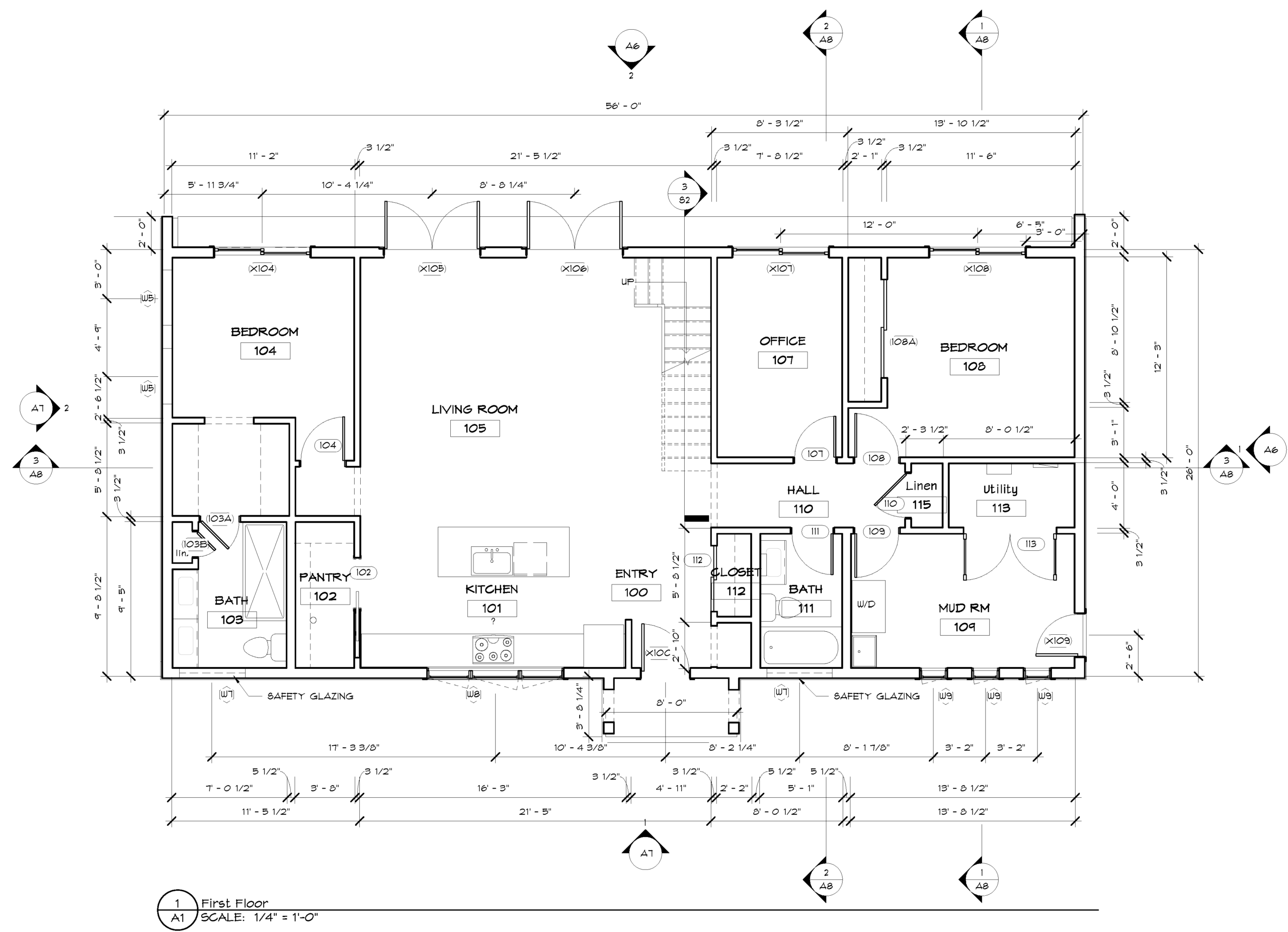
Clear drawing symbols and annotations are essential to communicating architectural intent.

Architectural drawings function as a shared language. They communicate details, reduce clutter, guide the reader, and keep the entire project organized. When used correctly, symbols and annotations allow us to say more with less—providing clarity without overwhelming the page.

Over time, I’ve come to see drawings not just as technical documents, but as instructions for collaboration. Every symbol, tag, and note exists to help someone else make the right decision in the field.


Start with the Sheet

Good communication always starts at the sheet level. Every sheet must have a clear name and number, and every drawing on that sheet must also be identified with its own name and number.

This structure is not optional—it is foundational.

When drawings lack consistent labeling, confusion follows. Contractors waste time searching, consultants misreference details, and errors multiply. A well-organized sheet layout sets expectations and establishes trust before anyone reads a single note.


The Plan: Where Everything Comes Together

Clear drawing symbols and annotations are essential to communicating architectural intent.

The plan drawing carries the most information and often receives the most attention. At a minimum, it should clearly identify:

  • Room names and numbers
  • Building section references
  • Wall section references
  • Door tags
  • Window tags

From experience, I can say that a clean plan tells a story at a glance. The reader should immediately understand how spaces relate, where key elements are located, and how to find additional information when needed.


Plans in Detail

As a drawing develops, additional layers of information are introduced. This includes:

  • More detailed dimensions
  • Fixture tags
  • Interior elevation references
  • Notes appropriate to the level of detail

This is where discipline matters. Too little information leaves questions unanswered; too much information creates visual noise. The goal is always balance—providing exactly what is needed at that stage of the project.


Dimensions: Precision with Purpose

Dimensions are not just numbers; they define intent.

Plans rely on horizontal and vertical dimensions to communicate size, alignment, and relationships. These dimensions typically describe:

  • Overall building or room sizes
  • Major plan features
  • Locations of key elements

In practice, unclear or inconsistent dimensions are one of the fastest ways to introduce errors in construction. Clear dimensioning reduces assumptions and protects the design.


Sections: Revealing What Plans Cannot

Plans show relationships; sections explain how things are built.

Building sections and wall sections reveal construction depth, material transitions, and structural relationships that cannot be understood in plan alone. Over the years, I’ve learned that a well-placed section can eliminate dozens of written notes.

When sections are clear, construction becomes more intuitive.


Door and Window Tags: Small Symbols, Big Impact

Door and window tags may seem minor, but they are critical connectors between drawings and schedules. They allow builders to quickly identify sizes, types, and locations without hunting through the drawing set.

Consistency here is key. When tags are clear and predictable, coordination improves across disciplines.


Interior Elevations: Designing at the Human Scale

Interior elevations focus on what occupants will see and interact with. They communicate:

  • Fixture placement
  • Vertical relationships
  • Material transitions

From experience, interior elevations often prevent costly mistakes. They clarify intent in areas where plan drawings alone fall short—especially in kitchens, bathrooms, and detailed interior spaces.


Final Thoughts

After 20 years, I can say this with confidence: great architecture depends on great drawings.

Symbols and annotations may not be glamorous, but they are essential. They allow ideas to move from paper to reality without losing meaning along the way.

When drawings are clear, construction becomes smoother, collaboration improves, and the design stands a far better chance of being built as intended. In the end, that clarity is one of the architect’s most valuable tools.

Robert

View Comments

Recent Posts

How to Read Construction Drawings: A Clear Guide for Homeowners

How to Read Construction Drawings: A Clear Guide for Homeowners - Construction drawings can look…

4 weeks ago

Architectural Design Phases Explained

By a practicing architect with two decades of experience delivering buildings from concept to construction…

1 month ago

What Drawings Are Required to Get a Building Permit? A Clear Guide for Homeowners

If you’re planning to build a new house, addition, or major renovation, one of the…

1 month ago

10 Common Mistakes to Avoid When Designing a House (Tips from a Licensed Architect)

Designing your own home is an exciting and stressful process. It’s an opportunity to create…

1 month ago

How Much Does It Cost to Build a House? A Practical Guide from a Licensed Architect

One of the first questions people ask when thinking about building a home is simple:…

1 month ago

Architect vs Builder: A Licensed Architect’s Guide to Choosing the Right Professional for Your Home

One of the most common questions people ask when planning a home project is simple:…

1 month ago